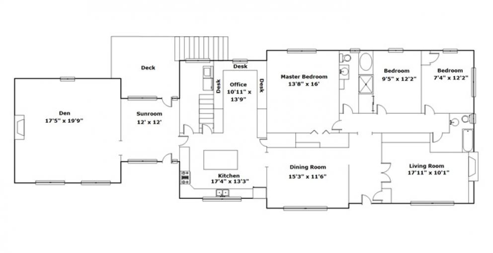
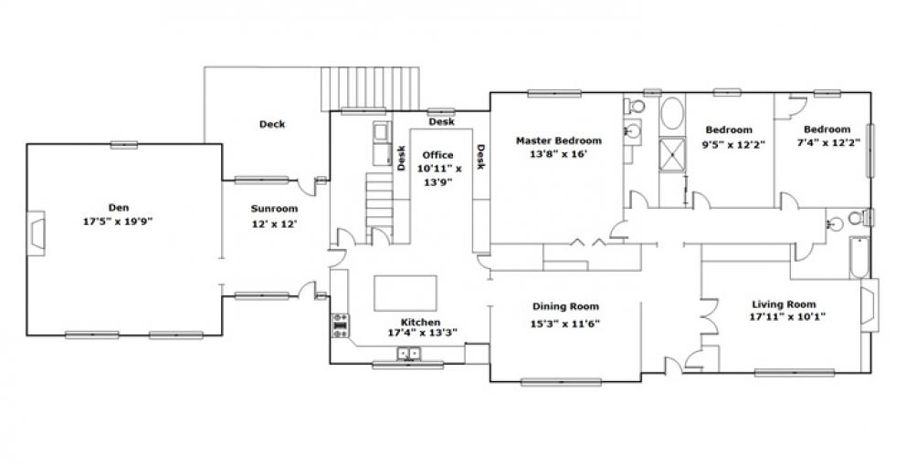
Immaculately maintained, second-owner home with a basement, in-ground pool with pool house, and over 4,000 square foot custom garage/shop situated on nearly 13 acres! This beautiful masonry home has room to roam – three bedrooms, two full bathrooms, kitchen with island, formal dining room, living room, den with fireplace, sunroom, unique office/flex space all sprawling over 2,500 square feet on the main level. The approximately 1,900 square foot walkout basement is primed for your vision and already has a fully finished bathroom. The 40 x 100-foot garage/workshop is immaculate! Built to the highest standards, with a floored second story, the end-use possibilities are limitless. Additional bonuses include the in-ground pool with pool house, a second storage building, circular driveways, and no HOA! With approximately 12.76 acres, this property appraised in March of 2019 for $428,000. Currently listed at $399,500.
Auction Type: Timed online bidding - click here for the link
Auction Dates: May 20, 2020 through June 3, 2020
Auction Preview: Online preview at this time - stay tuned for another open house! Agents, bring your buyers - all offers will be considered.
Property Location: 9933 Wilson Blvd., Blythewood, SC 29016
Agents: If you have a potential buyer, contact us and we will give you the information you need on to how to bid at the auction or submit a pre-auction offer. We compensate cooperating agents 3% at closing.
Contact:
- Nichole Desko, REALTOR – 864-843-5919
- Darron Meares, BIC – 864-642-2196
- Meares Property Advisors is representing the seller only in this transaction. We pay cooperating agents 3% at closing.
- An online eleven percent (11%) buyer’s premium will be applied to the approved high bid to arrive at the contract sales price.
- This property is being offered subject to seller confirmation of the high bid on auction day.
- The winning bidder is required to deposit ten thousand dollars ($10,000.00) into Meares Property Advisors' escrow account on the day of auction (escrow deposit will be deducted from amount due at closing).
- Closing to take place within thirty (30) days of contract signing.
- This property is being sold AS-IS with no warranties or guarantees, express or implied, and with all faults. Seller makes no warranty, express or implied, as to the title of the property or zoning of the property except as warranted by its deed.
- Potential buyers can arrange their own inspections and/or appraisal prior to auction date, at their expense.
- Seller will pay property taxes to date of closing.
- Buyer will pay all other closing costs, including, but not limited to: attorney fees, deed preparation, deed recording, survey (if required), mortgage fees, or any other fees or expenses required to close the transaction.
- Sale of property is not subject to any contingencies, financing, or appraisal.
- Announcements made the day of auction take precedence over any previous announcements or advertisements.













































